Dwupokojowe z widokiem na zieleń, ciche

Mieszkanie na wynajem
3 000,00 PLN , Pow. 49 m2
Drukuj ofertę
Drukuj ofertę
Typ nieruchomości:
Mieszkanie
Powierzchnia:
49 m2
Typ transakcji:
wynajem
Liczba pokoi:
2
Lokalizacja:
Warszawa Praga-Południe , Międzynarodowa
Rok budowy:
1970
Piętro:
7 na 10
Numer oferty:
34964546311
Cena za m2:
61,22 PLN
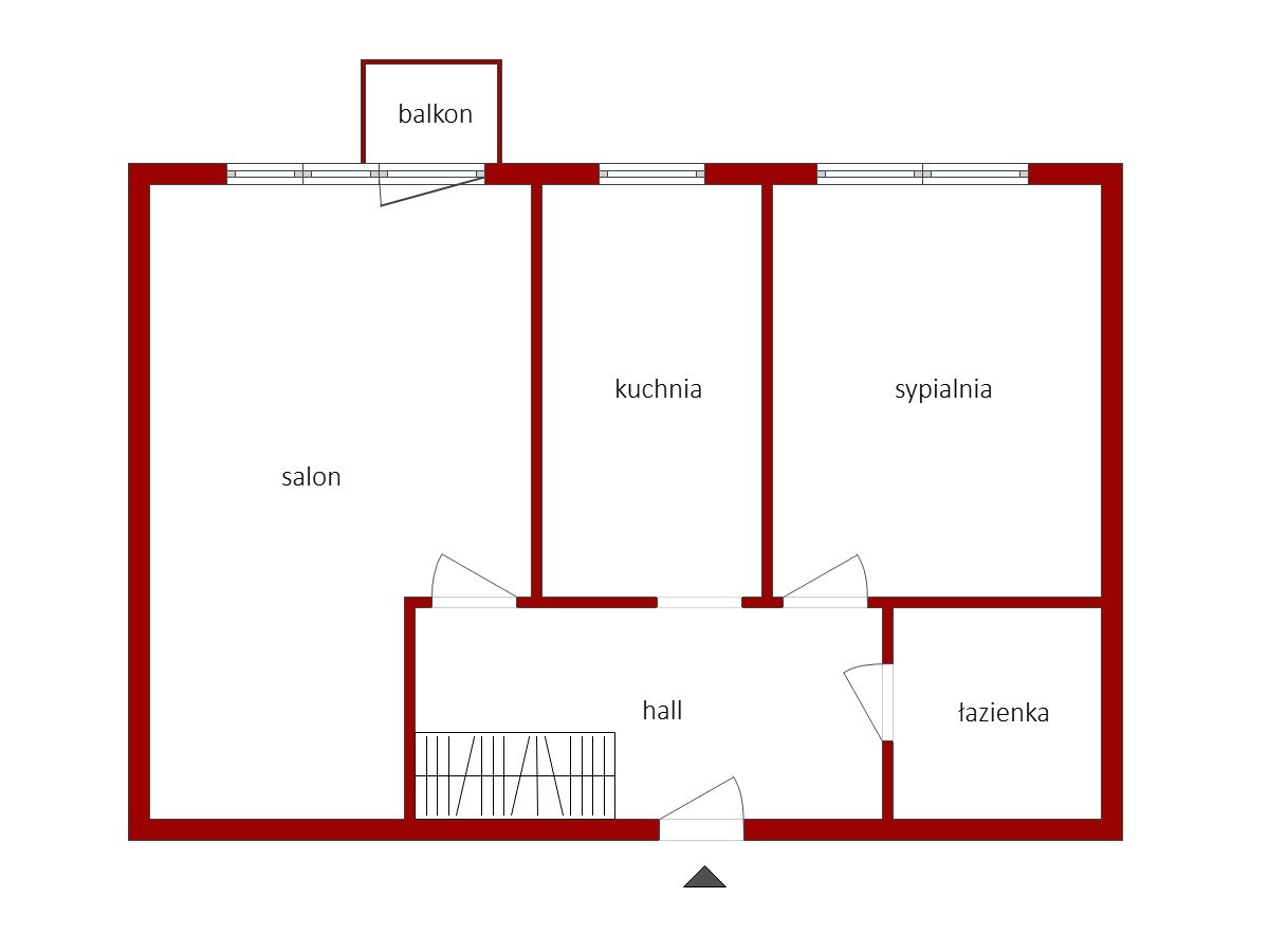
Zapraszam Państwa do zapoznania się z ofertą najmu 2 pokojowego, rozkładowego lokalu mieszkalnego o powierzchni 49m2, składającego się z salonu, osobnej, widnej kuchni, sypialni, łazienki oraz przedpokoju.
Mieszkanie znajduje się na 7 piętrze w budynku przy ulicy Międzynarodowej 68/60A. Urządzone, wyposażone w AGD (pralka, zmywarka, piekarnik).
Do lokalu przynależy: balkon

Najważniejsze cechy mieszkania:
• dobrze doświetlone,
• budynek w cichej lokalizacji,
• widok na Kanał Wystawowy oraz ogródki działkowe.

W pobliżu znajdziecie Państwo wszystko co potrzebne - przedszkola, szkoły, punkty gastronomiczne, centrum handlowe - Centrum handlowe Promenada, sklepy, przystanki autobusowe, szybki dojazd do Centrum.

Czynsz 3 000 zł/mc + 850 zł czynsz administracyjny + prąd + gaz.
Wymagana kaucja gwarancyjna w wysokości 4000 zł.
Umowa w formie najmu okazjonalnego, m.in. okres najmu 12-miesięcy.

Zapraszam na prezentację.

* Treść niniejszego ogłoszenia nie stanowi oferty handlowej w rozumieniu art. 66 Kodeksu Cywilnego.
Nieprawidłowy adres E-mail