Stary Mokotów| 2 Balkony | Parking|Kamienica

Mieszkanie na sprzedaż
1 300 000,00 PLN , Pow. 70,14 m2
Drukuj ofertę
Drukuj ofertę
Typ nieruchomości:
Mieszkanie
Powierzchnia:
70,14 m2
Typ transakcji:
sprzedaż
Liczba pokoi:
3
Lokalizacja:
Warszawa Mokotów , Rakowiecka
Rok budowy:
1950
Piętro:
3 na 3
Numer oferty:
34964532662
Cena za m2:
18 534,36 PLN
Mam przyjemność zaprezentować 2-pokojowe mieszkanie położone na Starym Mokotowie, w kamienicy z 1936 roku. Ta zabytkowa kamienica została zniszczona w ponad 50% podczas II wojny światowej, a następnie odbudowana i odrestaurowana, zachowując swój przedwojenny charakter i niepowtarzalny klimat.

ATUTY NIERUCHOMOŚCI
▪️Topowa lokalizacja - serce Starego Mokotowa
▪️Funkcjonalny układ z dużym potencjałem zmian
▪️Miejsce parkingowe
▪️Dwa balkony

LOKALIZACJA
Mieszkanie na Starym Mokotowie to doskonałe połączenie zielonej, spokojnej okolicy z pełnym dostępem do miejskich udogodnień. W pobliżu znajdują się Park Morskie Oko i Pola Mokotowski, liczne restauracje, kawiarnie, sklepy oraz szkoły.

Świetna komunikacja: 2 minuty pieszo do przystanków tramwajowych i autobusowych, 6 minut spacerem do stacji metra Pole Mokotowskie, a do centrum Warszawy można dojechać w 10-12 minut. W okolicy znajduje się również renomowana Szkoła Główna Handlowa oraz liczne ośrodki kultury, co czyni to miejsce idealnym zarówno do zamieszkania, jak i pod inwestycję.

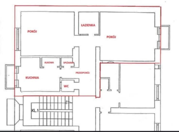
ROZKŁAD MIESZKANIA - 70,14 m² +piwnica oko 3 m2 + suszarnia
Mieszkanie składa się z dwóch niezależnych pokoi o powierzchni ok. 20 m² każdy. Obecnie zostały one dodatkowo podzielone lekką ścianką z karton-gipsu, którą w razie potrzeby można łatwo usunąć, przywracając pierwotny układ.
Do dyspozycji jest oddzielna, jasna kuchnia z wyjściem na balkon, łazienka z wanną, osobna toaleta oraz przestronny przedpokój z pawlaczem i licznymi szafami. Dzięki ścianom działowym układ mieszkania można dowolnie aranżować, np. przenieść kuchnię do salonu, tworząc aneks kuchenny, lub wydzielić dodatkowy pokój z balkonem.

Na podłogach znajduje się oryginalny, drewniany parkiet, który po odnowieniu (cyklinowaniu) odzyska swój dawny blask. Dwustronna ekspozycja okien (północ-południe) zapewnia doskonałe doświetlenie wnętrz i sprawia, że mieszkanie wydaje się jeszcze bardziej przestronne.

BUDYNEK
Mieszkanie znajduje się na 3. piętrze 3-piętrowej kamienicy 1950 roku.W budynku przeprowadzono wymianę pionów wodno-kanalizacyjnych oraz grzewczych jak i elektryki. Klatka schodowa jest zadbana, a na terenie posesji, od strony oficyny, znajduje się parking dla mieszkańców +dodatkowo miejsce parkingowe na ulicy abonament roczny - 30 zł

OTOCZENIE
Stary Mokotów to miejsce z niepowtarzalnym klimatem, pełne uroczych kawiarni, restauracji i parków. W najbliższej okolicy znajdują się także sklepy, teatr oraz Szkoła Główna Handlowa.

To doskonała propozycja zarówno dla osób szukających mieszkania dla siebie, jak i dla inwestorów poszukujących dobrej lokaty kapitału. Zdecydowanie warto zobaczyć je na żywo, aby poczuć wyjątkowy klimat tego miejsca.

STAN PRAWNY:
Pełna własność z założoną księgą wieczystą, co umożliwia posiłkowanie się kredytem.


Nieprawidłowy adres E-mail